所属分类:给料机系列
Product introduction
产品介绍
产品介绍
ZG型振动给料机是一种新型、节能通用给料设备。该机采用新型振动电机做激振源,具有结构简单、紧凑,使用及维修方便,给料连续均匀,料槽磨损小,使用寿命长等优点,常与振动输送机、振动筛、斗式提升机、破碎机等配套使用,用于自动配称、定量包装、自动控制的工艺流程中,是冶金、矿山、煤炭、电力、建材、化工、机械等行业理想振动给料设备。
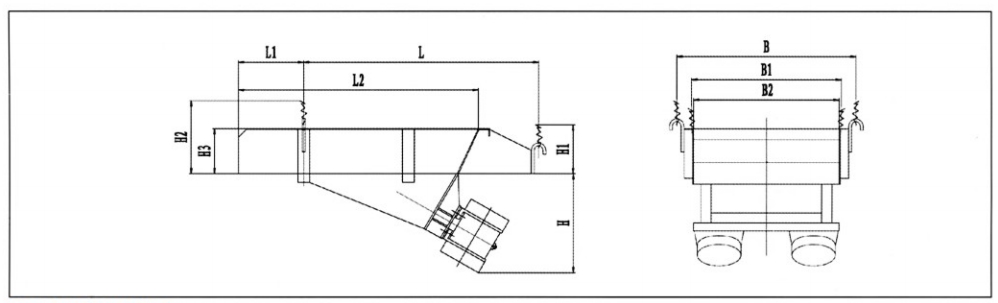
工作原理及结构特点
ZG系列振动给料机是利用新型振动电机驱动,使机体沿振动方向作周期直线往复运动来实现均匀、定量给料。ZG系列振动给料机由给料槽体、振动电机、减振装置等部件组成。
安装与调试、使用与维护
1.振动给料机如用于配料、定量给料时,为保证给料均匀稳定,防止物料自流应水平安装,如进行一般物料连续给料,可下倾10°安装。对于粘性物料及含水量较大的物料可以下倾15°安装。
⒉.安装后的给料机应留有100mm的游动间隙,横向应水平,悬挂装置采用柔性连接。
3.空试前,应将全部螺栓紧固一次,尤其是振动电机的地脚螺栓,连续运转3-5小时,应重新紧固一次。
4.试车时,两台振动电机必须反向旋转。
5.给料机在运行过程中应经常检查振幅,电流及噪音的稳定性,发现异常应及时停车处理。6.电机轴承每2个月加注一次润滑油,高温季节应每月加注一次润滑油。






Customer case
客户案例
Relevant news
相关新闻
-
08-17
积极维护防汛救灾网络秩序倡议书近期,东北、华北、黄淮等地出现极端降雨,多地出现居民被困和人员伤亡情况,全国各地救援力量迅速集结,全力投入防汛救灾工作。在当前全国齐心聚力、携手救灾的特殊时期,... -
11-20
振动筛的大好场景!国内的振动筛行业可谓是风生水起,行业内一派火热景象。别的不说,就拿行业消息来讲:鞍重股份高性能大型振动筛入围国家科技技术发明奖;中联重科首台4GLS2530...
-
11-20
振动筛为什么能取代摇动筛?振动筛在行业初期也遇到过很多强有力的竞争对手,就像摇动筛,也风靡一时。今天,我们带你一起探讨一下,振动筛为什么取代摇动筛? 摇动筛是以曲柄连杆机构作为传动...
